Helsinki Enquiry
Helsinki Floorplan Enquiry
External shot of the Helsinki 2 bedroom modular home by Fox Modular

Helsinki

Fox Modular

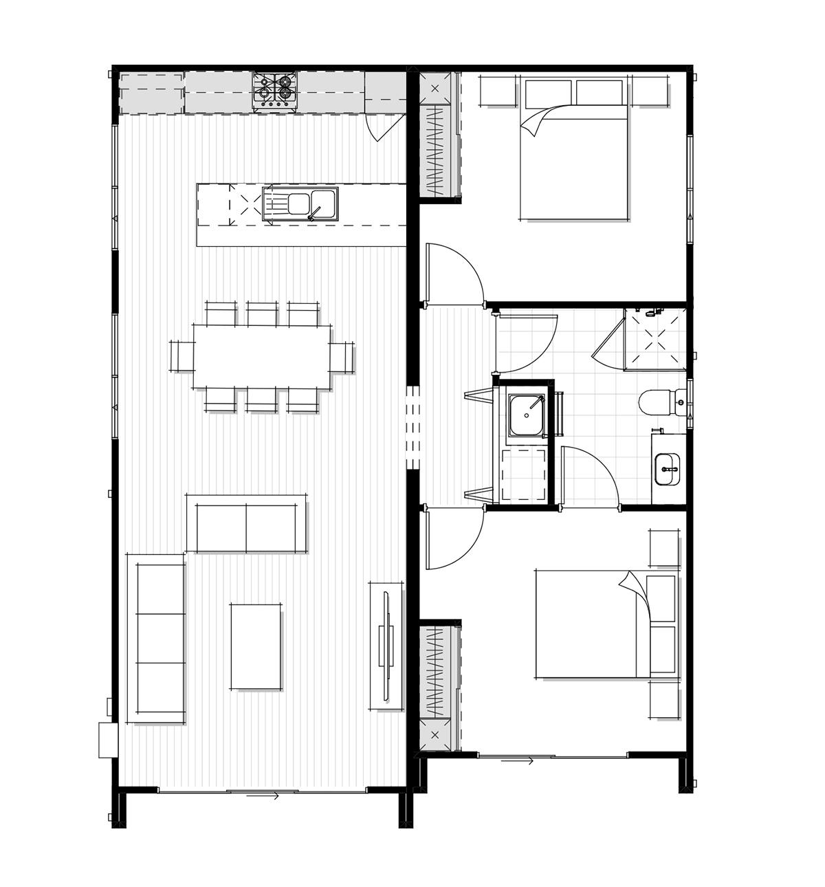
2 Beds

Fox Modular

1 Bath

Fox Modular

No
Alfresco

Fox Modular

90.72m2
Total Area

By

Helskini offers a contemporary option for those looking for a two-bedroom, one-bathroom home.

The design offers plenty of space for the living and bedroom areas, making it ideal for a couple or small family.

Helsinki features Polytec benchtops and cabinetry; Alder tapware throughout in a selection of finishes; 600mm stainless steel Westinghouse appliances; Seima sinks, bath (where included) and toilets; Clipsal light switches and powerpoints; reverse cycle air-conditioning to the living area; COLORBOND® roofing and cladding and much more!

Images are for illustrative purposes only

Premium details on louge area inside Fox Modular's Berlin 2 bedroom modular home

Features

Open plan kitchen, living & dining area

Sliding door from master bedroom to outdoors

Spacious bathroom with dual access

Contemporary facade

Also available in 1×1 and 3×2 configurations