Strathmore Enquiry
Strathmore Floorplan Enquiry

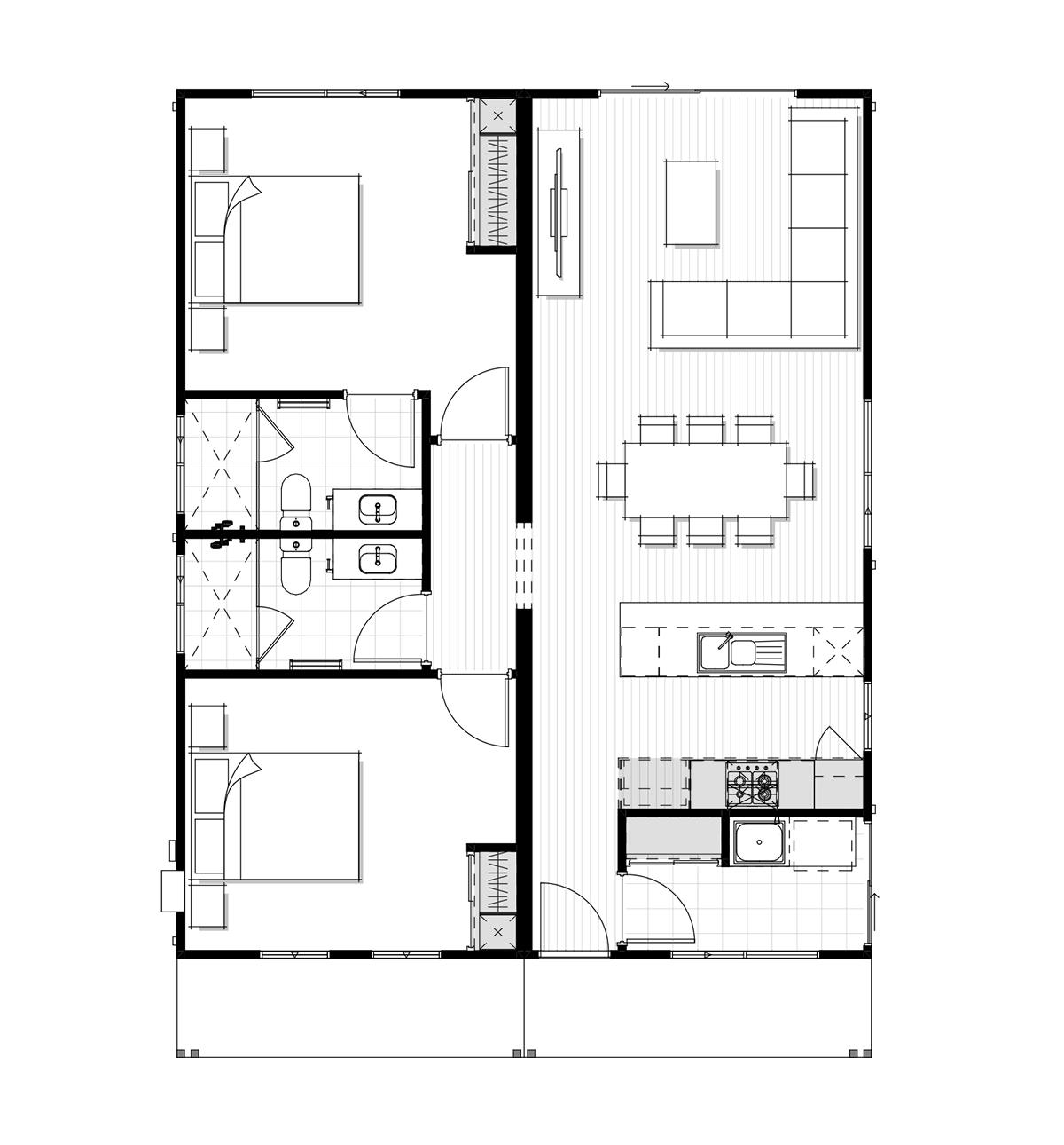
Strathmore

Fox Modular

2 Beds

Fox Modular

2 Baths

Fox Modular

No
Alfresco

Fox Modular

88.2m2
Total Area

By

Offering a compact option for a small family or even workers’ accommodation, the Strathmore exudes farmhouse style.

The kitchen overlooks an open plan living and dining area, while each bedroom has a robe with sliding doors and access to its own bathroom.

The Strathmore features Polytec benchtops and cabinetry; Alder tapware throughout in a selection of finishes; 600mm stainless steel Westinghouse appliances; Seima sinks, bath (where included) and toilets; Clipsal light switches and powerpoints; reverse cycle air-conditioning to the living area; COLORBOND® roofing and cladding and much more!

Images are for illustrative purposes only

Premium details on louge area inside Fox Modular's Berlin 2 bedroom modular home

Features

Open plan kitchen and living area

Spacious bathrooms with large showers

Farmhouse style facade

Robes with sliding doors